The BSEL is housed in a 2,000 sq. feet state-of-the-art facility that was built in 2004. The laboratory contains offices for post-doctorial fellows and PhD students. It consists of several sepcialised facilities allowing the performance of cutting-edge research in the areas of stem cell bioprocessing, tissue engineering, mammalian cell culture, and microbial fermentation.

Please click on the links below for a brief virtual tour of each room:
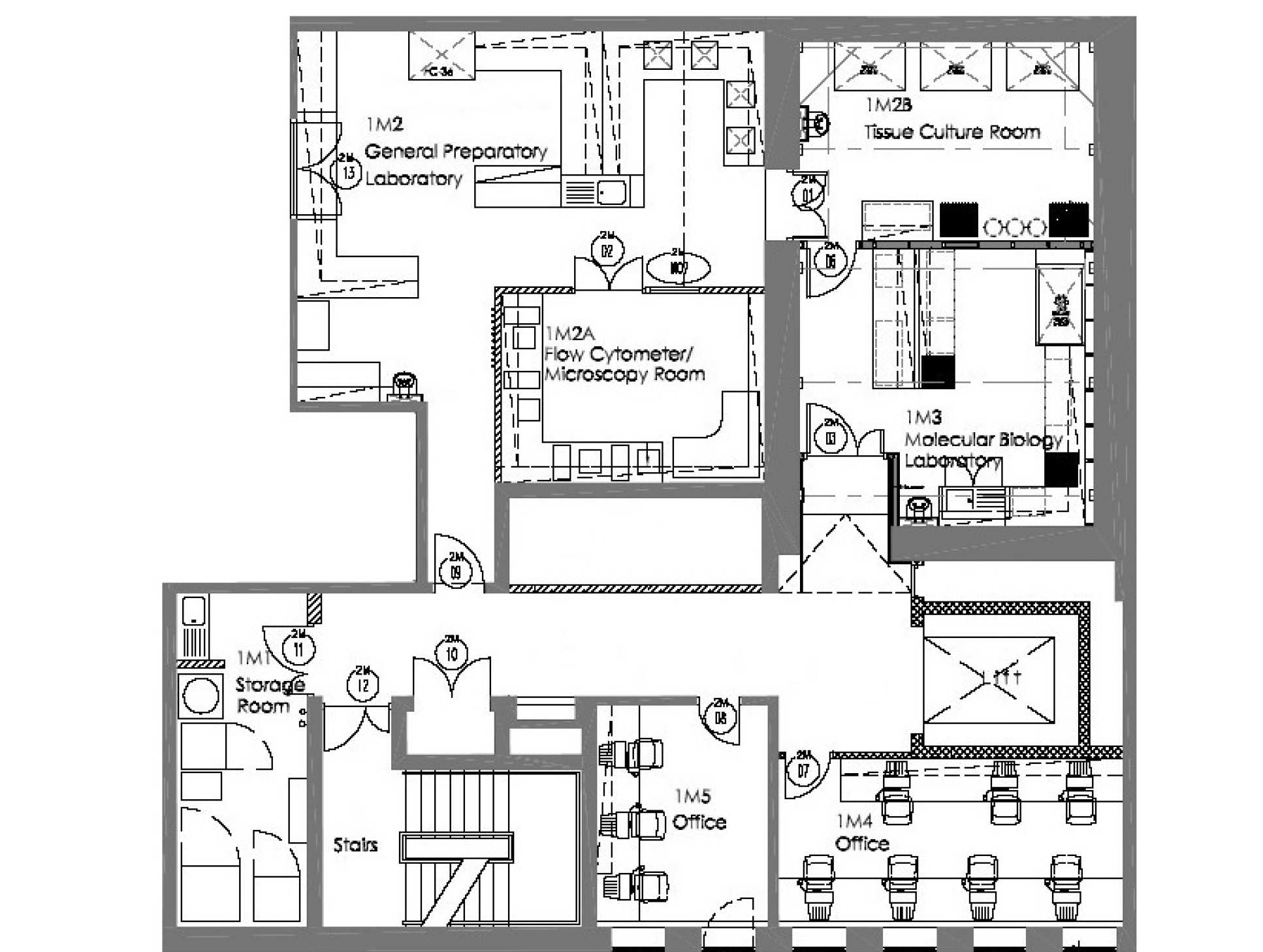
Facilities
- General Laboratory
- Cellular Analysis Laboratory
- Tissue Culture Laboratory
- Molecular Biology Laboratory
- PhD Office
- Post-Doc Office
- Storage Room
The general preparatory lab contains general equipment such as centrifuges, balances and water purification system.
Specialised equipment includes:
Nova Biomedial BioProfile 400
- Provides immediate analysis of key nutrients, metabolites, and gases in cell culture and fermentation media.
- Fully automated, multi-test systems designed for rapid, simultaneous analysis with results available in 3 minutes or less.
- Measured tests glucose, lactate, glutamine, glutamate, ammonium, pH, PO2, PCO2, sodium, potassium, acetate, phosphate, and glycerol.
Thermal-Induced Separation (TIPS) Apparatus
- Supercooled ethylene glycol bath attached to vacuum pump and liquid nitrogen
High Performance Liquid Chromatography System
- Equipped with amino acid exchange column
ELx 808 ELISA Reader
- Microplate reader to asses fluorescently-conjugated dye adherence to cells
Assorted centrifuges
- For 1.5 mL eppindorfs, 15 mL, and 50 mL centrifuge tubes
- Appartus to perform cytospin for cell imaging
Millipore GUAVA EasyCYTE Benchtop 8HT High Throughput Sampling Flow Cytometer
Key features:
- 2-laser setup: 488 nm, 640 nm for detecting up to 6 colors and 8 parameters.
- Automated sampling for 96 well plates / single sample loading for tubes
- Microcapillary flow cell for no sheath fluid
- Direct, absolute counts of cells per uL
- Guava InCYTE cytometry software
Ruskinn InvivO2 400 Hypoxia Workstation with Digital Microscope
Key features:
- Short interlock (pass-through) purge cycle time
- Single Plate Entry System (SPES)
- O2 stability from 0.0% (anoxia) to 20.9% (ambient) in 0.1% increments
- CO2 stability from 0.0% to 30.0% in 0.1% increments
- Digital microscope allows for the capture of images and movies for cells
Promega GloMax-Multi+ Detection System
Key features:
- Luminesence, Fluoresence and Absorbance for bioassays
- 6, 12, 48, 96, 382 well microplate reader
- Instinct Software with microplate builder on a color touch screen
BioFlo 110 bioreactor
Key features:
- Fermentation and cell culture system.
- Directs up to four culture vessels at once.
- A total of 32 control loops.
- Temperature control via water jacket.
Olympus BX51 digital image analysis fluorescence microscope
Key features:
- BX51 Olympus microscope
- UPLFL 10x objective
- UPLFL 20x objective
- Plan 50x oil objective
- UPLFL 100x oil objective
- BX-RFA Fluorescence illuminator
- U-MWIY2 wide band fluorescence cube (exciter BP 545/580 nm, DM 600, Barrier BA 610 nm)
- U-MNU2 narrow band fluorescence cube (exciter BP 360/370 nm, DM 500, Barrier BA 420 nm)
- U-MNB2 narrow band fluorescence cube (exciter 470/490 nm, DM500, Barrier BA 515 nm)
- DP50 Digital camera (5.8 million pixel equivalent)
- AnalySIS-Auto software for 3D image construction
Leica DM IL inverted phase microscope
Key features:
- Integrated Hoffman Modulation Contrast (IMC)
- Optimized Fluorescence with 3 position filter cube slider
- Field of View: 20 mm
- 6 Volt/35 Watt transmitted light illumination
This is a positive pressure clean room (HEPA-filtered air supply) equipped with three direct exhaust laminar flow cabinets.
Three (3x) HERAsafe Class II Biosafety Cabinets
Key features:
- Aerosol-tight & motor-driven front window.
- Filter rated at 99.999% for 0.3 µ particles.
- Windows made from non-reflecting laminated safety glass.
- A monitoring system that clearly alerts the user in the event of a blower or filter failure.
- A keypad lock to limit unauthorised access.
Varied Incubators (8x) designed for O2, CO2, static culture, and bioreactor outfits
Alongside a tissue culture room-specific microscope, centrifuge, and more.
Applied Biosystems StepOnePlus Real-Time PCR System (RT-PCR)
- Fast (40min) and Standard (2hr) runs
- PC-free or networked operation with intuitive software
- Supports high resolution melt (HRM) software
- 4 color, 96 well instrument
- VeriFlex block for PCR optimisation
With associated PCR shakers, thermocyclers, and more
Sygene BIOFLASH Gel Documentation System
- Darkroom (Epi white lighting factory fitted)
- High performance CCD camera with zoom lens
- For western blot / gene analysis
1M4 video clip (QuickTime Player)
*If you do not have QuickTime Player, you can download it free .
*If you do not have QuickTime Player, you can download it free.
Liquid Nitrogen Cell Cryobank
- For stable cell preservation
-80C Heracles freezer
- For medium, reagent, and powder storage
-20C freezer (3x)
4C refrigerator (3x)
Contact details
Professor Sakis Mantalaris
Head of BSEL Group
Chemical Engineering Department
Tel: +44 (0)20 7594 5601
Email:
a.mantalaris@imperial.ac.uk